在门窗幕墙的设计过程中,会遇到一些阴、阳角位置,在这个位置的隔热型材设计时,有的是采用两根框料的拼接来完成,也有的设计一根隔热型材,使得隔热型材中的两根隔热条互成一定角度(如下图所示),这样来完成阴、阳角过渡。
针对这类铝型材的加工,现阶段大部分的厂家在加工时都是纵横向各滚压一遍来完成。这个方法的缺点主要有两个:一是隔热铝型材需要滚压两次,生产效率低;二是在遍滚压时,另外一支隔热条是处于松散状态的,没有两侧铝材的约束,容易产生变形,而在第二次滚压是该变形又不能恢复,所以使得滚压完后的隔热铝型材的外形尺寸精度、弯曲、扭拧等都出现问题。
为解决上述问题,提高该铝型材的生产效率,就需要对隔热铝型材加工设备中滚压设备进行局部改造升级,也就是在滚压设备上增加90度滚压装置及相关辅助设施。
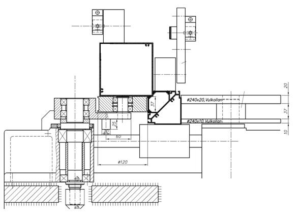
下图是90度滚压设备改造简图。
图二 90度滚压简图一
图三 90度滚压简图二
在常规的滚压设备中,隔热铝型材左右两侧是滚压盘,上下边是定位胶轮。要做到90度滚压,就要将隔热铝型材左右两侧中的一侧的滚压盘换成定位胶轮,而上下边的定位胶轮中的上部胶轮要换成滚压盘,且因滚压设备的空间限制,该滚压盘必须经过特殊设计和处理(见图四)。这样使得两个滚压盘和定位胶轮都是成90度,从而达到90度滚压。
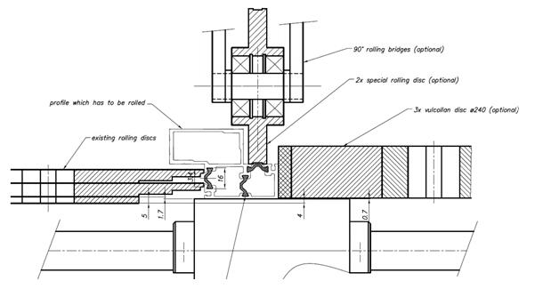
图四 90度辅助滚压盘
图五和图六是经过改造后的设备。
图五 案例一
图六 案例二
当然也可以调整辅助滚压盘的角度使得滚压设备可以加工其他角度的隔热型材。
图七 其他角度的隔热铝型材加工
本文就穿条式隔热名k型材中转角料隔热条互成90度的这种隔热铝型材的加工提出相应的滚压方案。总之,通过滚压设备的简单改造,对于这种隔热条并不是平行而是成一定角度的隔热铝型材,是可以在保证其外形尺寸精度及生产效率的基础上,进行顺畅的生产的。



